Welcome Home

Clean lines.

Timeless materials.

Thoughtful construction.

EXTERIOR DESIGN & CURB APPEAL

This home features a bold yet simple exterior designed to age well and stand out.

• Board-and-batten vinyl siding on the front elevation

• Vertical vinyl siding on sides and rear

• Stained 6”x6” porch posts with decorative gable truss

• Architectural shingle roof with ridge venting

• Black insulated garage door with upper windows

• Seamless aluminum gutters

• Covered front porch with concrete pad

1510 Sq Ft New Construction Home

Designed for efficiency, comfort, and long-term durability, this 1510 square foot new construction home offers true single-level living with a clean modern-farmhouse aesthetic.

Built on a slab foundation with no basement, this home prioritizes practicality, energy efficiency, and low maintenance—without sacrificing style.

Built by BW Custom Homes, every detail reflects intentional design and solid craftsmanship.

BEDROOMS & BATHROOMS

The primary suite offers a quiet retreat with clean, durable finishes.

• Fiberglass shower enclosure in primary bath

• Fiberglass tub/shower combo in secondary bath

• Quartz vanity countertops

• Chrome plumbing fixtures

• Two-panel interior doors

Each bedroom is well-proportioned with ample natural light and closet space.

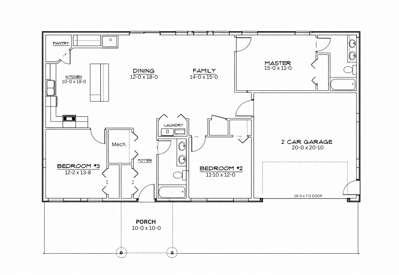
FLOOR PLAN OVERVIEW

The layout is designed for easy everyday living with smart separation between shared and private spaces.

• Open-concept kitchen, dining, and family room

• 9-foot ceilings

• Private primary suite with attached bathroom

• Two additional bedrooms with shared full bath

• Dedicated laundry room

• Direct access to attached 2-car garage

Efficient circulation, natural light, and practical room sizes make this home feel larger than its footprint.

CONSTRUCTION & ENERGY EFFICIENCY

Built with long-term performance in mind, this home includes:

• Post-frame construction with concrete footers

• 4” interior concrete slab with perimeter foam insulation

• R-19 wall insulation & R-50 attic insulation

• Sealed and spray-foamed ductwork

• High-efficiency Bryant furnace and central air

• 200-amp electrical service

All systems are installed to code by licensed contractors.

KITCHEN & LIVING SPACES

The heart of the home is a bright, open living space designed for gathering and daily use.

• White shaker-style cabinets with soft-close hardware

• Quartz countertops

• Stainless steel undermount kitchen sink

• Luxury vinyl plank flooring throughout

• LED recessed lighting in main living areas

The kitchen flows seamlessly into the dining and family room, creating a comfortable and functional central living area.

GARAGE, CONCRETE & SITE WORK

 Attached 2-car garage with opener and remotes

• Sloped garage concrete for proper drainage• Concrete driveway apron

• Front and rear concrete porch pads

• Crushed concrete gravel driveway beyond apron

The site is fully graded with grass seed and river rock accents along the front of the home.


BUILT BY

BW CUSTOM HOMES

This home reflects BW Custom Homes’ commitment to straightforward design, quality materials, and honest craftsmanship.

Built to be lived in. Built to last.

Contact us

Interested in working together? Fill out some info and we will be in touch shortly. We can’t wait to hear from you!